当被问及新房装修方案时,许多朋友往往一时语塞,最常听到的就是“简单一点”。然而,真正的实践远比这六个字复杂。我们追求的不仅是简洁实用,还要避免落入出租房般的廉价俗套,力求简约而不失品质,让人一见倾心。今天,我将与大家分享一个80平米两居室的装修案例。在设计师的精心策划下,房屋局部得到了改造和优化,最终呈现出一个清新明亮、美轮美奂的空间。如果你正在考虑购房装修,不妨以此为灵感吧!

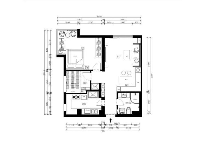
原始平面户型图展示的是一套80平方米的两居室新房,其整体户型布局相当合理。在装修过程中,无需进行大规模拆墙改造,仅需针对局部空间进行细致的改造与优化,即可满足居住需求并提升居住体验。

改造后的平面图对原有空间进行了巧妙调整:过道处的内凹部分被优化利用,改造成了鞋柜区域,不仅增强了空间的实用性,还从视觉上提升了整体感。主卧则通过拆除飘窗,有效扩大了使用面积并改善了采光条件,使得卧室环境更加宽敞明亮。

玄关区域原本就有一道横梁自然地将空间分隔,巧妙地避免了过道显得过于狭长的问题。玄关顶部采用了软膜透光天花设计,使得光线变得柔和而温馨。玄关内配置了换鞋凳、穿衣镜和洞洞板,既简洁又实用,充分利用了空间且不会让人感到拥挤。


过道处的内凹部分被巧妙地设计成了一个鞋柜,与通往卧室的门洞巧妙地串联在一起,这种局部的优化改造在视觉上增强了整体空间的连贯性。鞋柜分为上下两层,提供了充足的储物空间,极大地满足了日常收纳需求。


客厅摒弃了繁复的装饰,即使没有吊顶和华丽的墙面装饰,仅仅刷白墙也能展现出经久耐看的魅力。原木色与白色的搭配总能营造出清新自然的感觉。选择细长腿的家具不仅增添了空间的通透感,对于面积不大的房子来说,更是提升视觉宽敞度的明智之选。

电视墙被设计成了一个整体的组合柜,采用了令人百看不厌的原木色,既自然又舒适。这样的设计不仅美观,还大大增加了储物空间。组合柜的悬空部分主要依靠电视的背板进行支撑,背板与墙体紧密相连,确保了极佳的承重效果,既实用又安全。

厨房采用了U型设计,有效地扩大了操作台面,并增加了储物空间。这样的设计堪称完美,其储物收纳方案尤其值得借鉴。通过将瓶瓶罐罐等杂物妥善收藏,操作台保持得整洁有序,仅仅是看着就让人感到舒心愉悦。


主卧融入了一抹淡雅的蒂芙尼蓝,通过斜角对称的设计巧妙增强了空间感,同时也恰好是阳光倾洒进来的角度。拆除原有的飘窗后,这里被精心布置成了一个休闲区,落地窗与舒适的懒人沙发相得益彰,营造出一种无比惬意与美妙的氛围。

次卧定制了榻榻米,这一设计极大地提高了空间利用率,对于面积较小的房间来说,选择定制家具无疑是更为合适的选择。此外,还在房间的一角摆放了猫爬架,为家中的猫咪提供了一个攀爬和玩耍的专属空间。


卫生间内定制了收纳柜和浴室柜,为了避免潮湿问题,特别设计成非落地款式。淋浴区与洗漱区之间采用了半隔断设计,这样的布局使得空间看起来更加宽敞明亮。
